9 Beds - Detached house - Let Agreed Brook Road - Fallowfield - 175 PPPW - £6,825 PCM

  • 9
  • 3

STUDENT PROPERTY Available July 2026 Rent £175 per person per week INCLUDING BILLS - gas water electric and we provide free wifi - all subject to fair usage Amazing and very spacious, detached property. This very rare and grand Victorian home offers a lot of space and has lots of original features. Has to be viewed to appreciate it charm, space and facilities!

Key Features

  • Back Garden

  • Driveway

  • Double Glazing

  • Gas Central

  • Washing Machine

  • Dishwasher

  • Water Bills Inc.

  • Gas Bills Inc.

  • Electricity Bills Inc.

  • Internet Bills Inc.

Available July 2026 Rent £175 per person per week INCLUDING BILLS - gas water electric and we provide free wifi - all subject to fair usage Amazing and very spacious, detached property. This very rare and grand Victorian home offers a lot of space and has lots of original features. Has to be viewed to appreciate it charm, space and facilities! Located on a very popular road just off Wilmslow Road it is ideal for students commuting to University. Just a few minutes walk to Fallowfield centre, shops and bars Large lounge comfy sofas and a flat screen TV. Separate kitchen and utility room with lots of facilities Newly modernised and decorated throughout. Spread over 4 floors each bedroom is large and loaded with charm and character. They have a wardrobe, double bed, chest of drawers and a desk. There are 3 bathrooms. Large patio/garden area to the rear Gas central heating, energy efficient combi boiler, well insulated and double glazed. Deposit 495 per person Council Tax Band F EPC 3337-5029-9309-0651-2206 Manchester Rent a Home is a member of The Property Redress Scheme, Client Money Protect Accredited Landlord of Manchester Student Homes


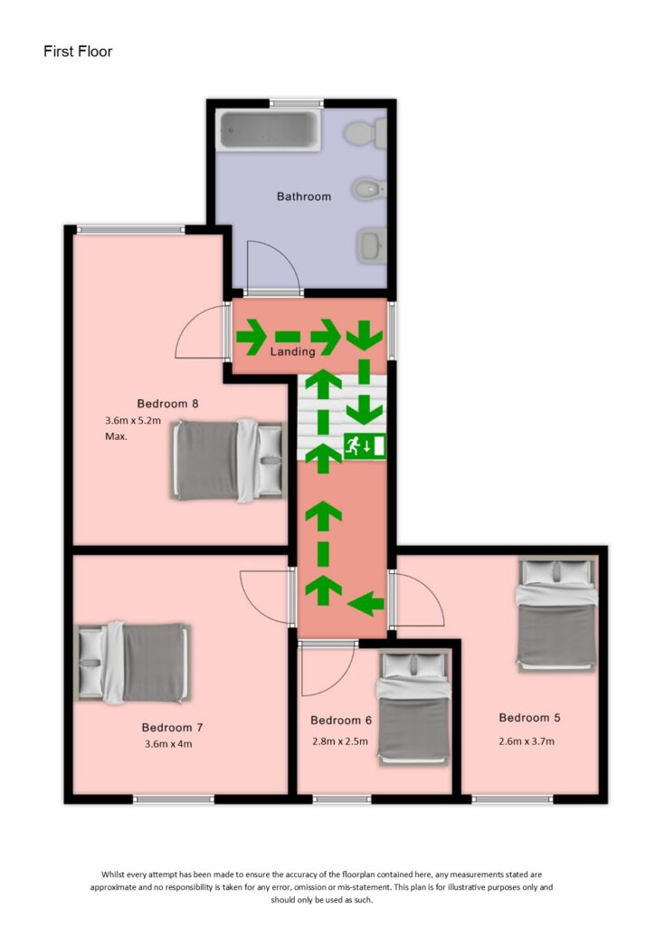
Floorplan

Floorplan Floorplan

Location